Nestled on Panathinaion Street near Gladstonos Ave, LAV offers urban living in Limassol's vibrant heart. Adjacent to Lemesou B’ Elementary School, this premier development provides immediate access to high-street shops, cafes, restaurants, schools, and pharmacies.
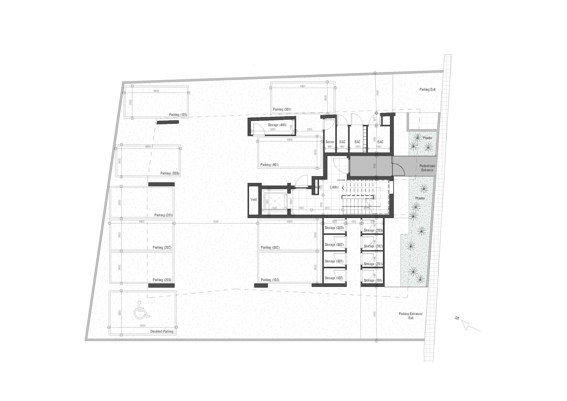
LAV features a selection of two one-bedroom, six two-bedroom, and two three-bedroom penthouses -one with swimming pool- apartments, each with a dedicated parking space. The building ensures security with a camera-controlled main entrance.
Experience the essence of modern city life with LAV – where convenience meets quality in Limassol’s bustling centre. Enjoy contemporary amenities, secure living and a prime location in this expertly designed residence.
| Property Type | Residential | 
| Location | Agia Zoni | 
| Status | Off plan | 
| Expected Completion Date | 31 December 2027 | 
| Energy Efficiency | Grade A | 
| Status | Reference | Type | Floor | Parking spaces | Bedrooms | Bathrooms | Pool | Covered m2 | Covered veranda m2 | Roof garden m2 | Total Area | VAT | Estimated Monthly Rental Income | Monthly Rental Guarantee | 
|---|---|---|---|---|---|---|---|---|---|---|---|---|---|---|
| 101 | Apartment | 1 | 1 | 2 | 2 | - | 73 | 26 | - | 99 | - | 2300 | 1800 | |
| 102 | Apartment | 1 | 1 | 2 | 2 | - | 73 | 23 | - | 96 | - | 2300 | 1800 | |
| 201 | Apartment | 2 | 1 | 1 | 1 | - | 45 | 9 | - | 54 | - | 1800 | 1300 | |
| 202 | Apartment | 2 | 1 | 2 | 1 | - | 65 | 13 | - | 78 | - | 2100 | 1700 | |
| 203 | Apartment | 2 | 1 | 2 | 1 | - | 67 | 11 | - | 78 | - | 2100 | 1500 | |
| 301 | Apartment | 3 | 1 | 1 | 1 | - | 45 | 9 | - | 54 | - | 1850 | 1350 | |
| 302 | Apartment | 3 | 1 | 2 | 1 | - | 65 | 13 | - | 78 | - | 2100 | 1750 | |
| 303 | Apartment | 3 | 1 | 2 | 1 | - | 67 | 11 | - | 78 | - | 2100 | 1550 | |
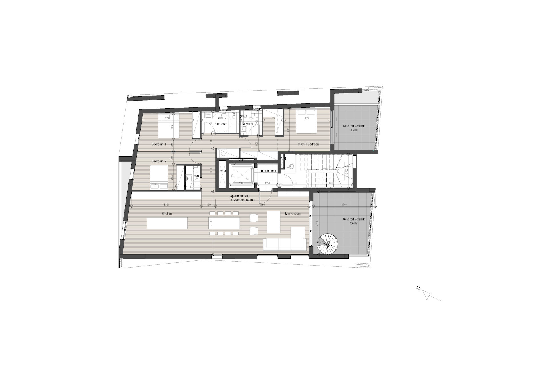
| 401 | Apartment | 4 | 1 | 3 | 3 | - | 86 | 21 | 36 | 143 | - | 3500 | - | |
| 401 + 402 | Apartment | 4 | 2 | 4 | 3 | Private | 172 | 43 | 62 | 277 | - | - | - | |
| 402 | Apartment | 4 | 1 | 3 | 2 | Private | 86 | 22 | 26 | 134 | - | 3500 | - | 
Are you an agent? Sign in
For inquiries, please leave us your details.
Thank you for your message!