Situated within a sought after residential enclave of Limassol, ANASA Residences is an exclusive contemporary development offering a refined selection of spacious 1 and 2 bedroom apartments. Thoughtfully designed for those who value understated luxury and modern comfort, the project seamlessly combines privacy, elegant architecture, and everyday convenience. Residents benefit from easy access to Limassol’s premier amenities, reputable schools, boutique retail and dining options, while remaining just minutes from the city’s key commercial routes and vibrant urban center. ANASA Residences embodies a balanced lifestyle of tranquility, quality, and sophisticated coastal living.
Get in touch| Property Type | Residential |
| Location | Mesa Geitonia |
| Status | Off plan |
| Expected Completion Date | 30 August 2028 |
| Energy Efficiency | Grade A+ |
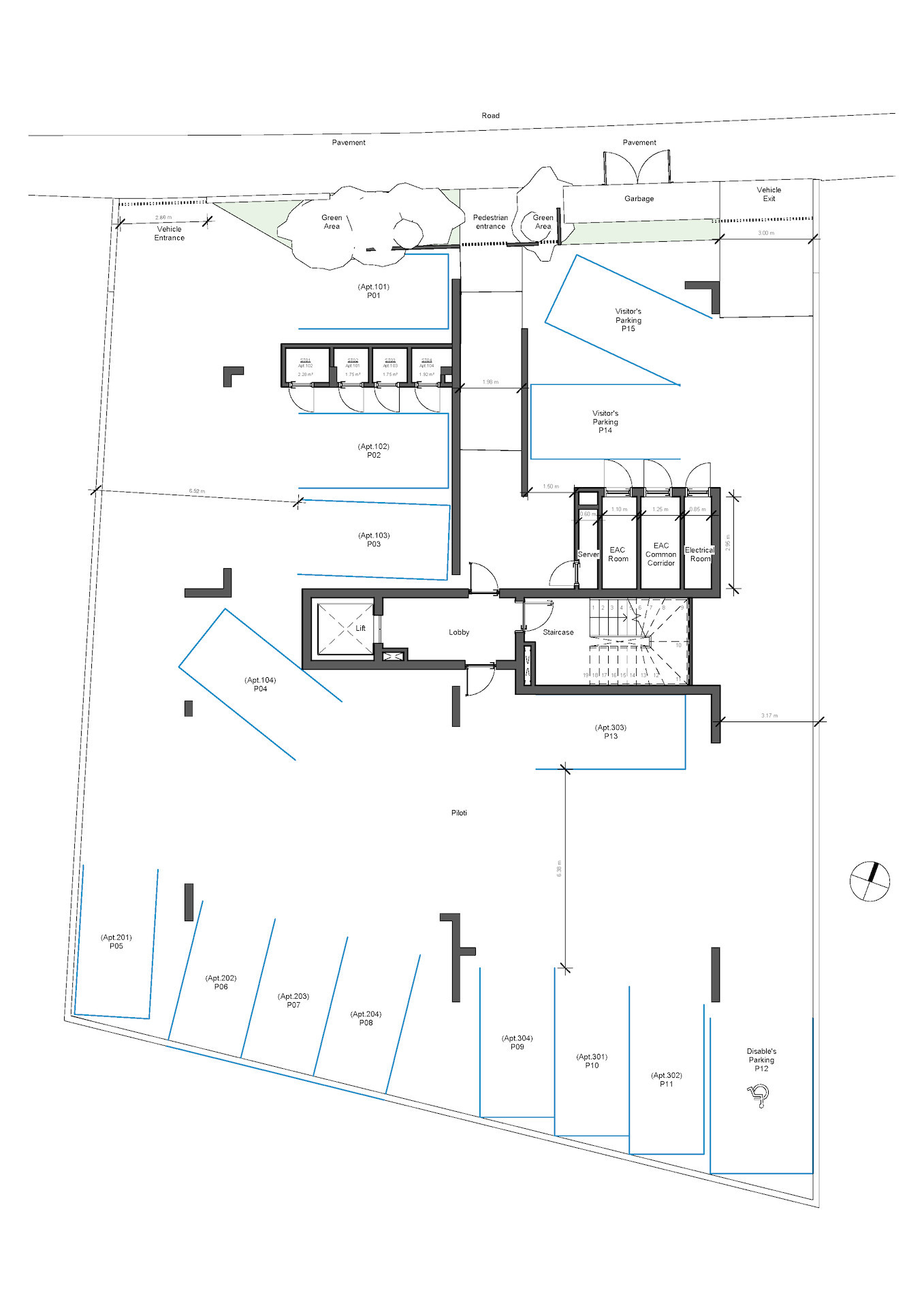
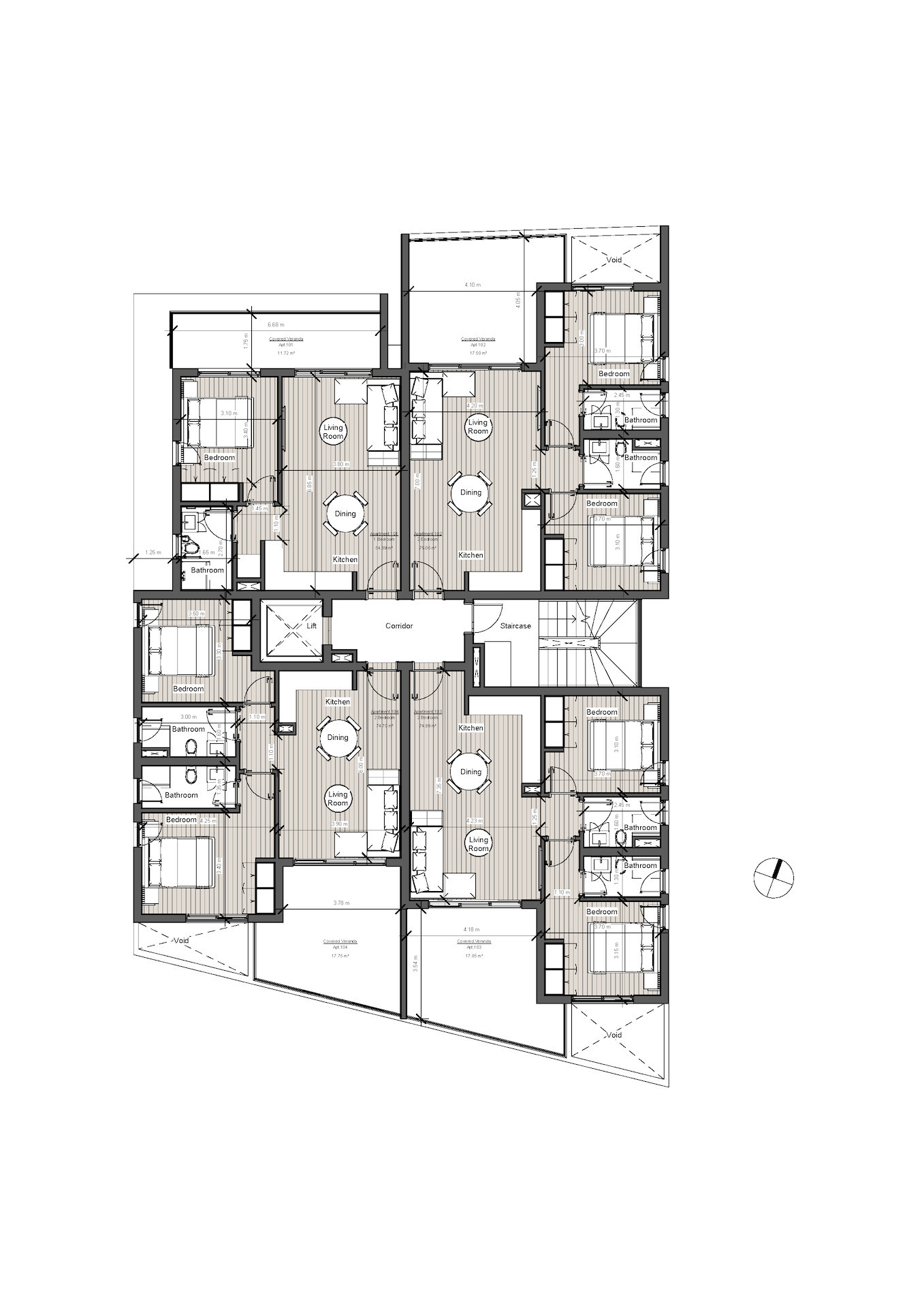
| Status | Reference | Type | Floor | Floors | Parking spaces | Bedrooms | Bathrooms | Covered m2 | Covered veranda m2 | Uncovered veranda m2 | Roof garden m2 | Total Area |
|---|---|---|---|---|---|---|---|---|---|---|---|---|
| 101 | Apartment | 1 | 1 | 1 | 1 | 1 | 55 | 12 | - | - | 67 | |
| 102 | Apartment | 1 | 1 | 1 | 2 | 2 | 75 | 18 | - | - | 93 | |
| 103 | Apartment | 1 | 1 | 1 | 2 | 2 | 75 | 18 | - | - | 93 | |
| 104 | Apartment | 1 | 1 | 1 | 2 | 2 | 75 | 18 | - | - | 93 | |
| 201 | Apartment | 2 | 1 | 1 | 1 | 1 | 55 | 12 | - | - | 67 | |
| 202 | Apartment | 2 | 1 | 1 | 2 | 2 | 82 | 11 | 4 | - | 97 | |
| 203 | Apartment | 2 | 1 | 1 | 2 | 2 | 81 | 12 | 6 | - | 99 | |
| 204 | Apartment | 2 | 1 | 1 | 2 | 2 | 82 | 11 | 5 | - | 98 | |
| 301 | Apartment | 3 | 1 | 1 | 1 | 1 | 55 | 12 | - | 27 | 94 | |
| 302 | Apartment | 3 | 1 | 1 | 2 | 2 | 75 | 18 | - | 53 | 146 | |
| 303 | Apartment | 3 | 1 | 1 | 2 | 2 | 75 | 18 | - | 31 | 124 | |
| 304 | Apartment | 3 | 1 | 1 | 2 | 2 | 75 | 18 | - | 27 | 120 |
Are you an agent? Sign in
For inquiries, please leave us your details.
Thank you for your message!