This website uses cookies to enhance your user experience.
By using our website, you consent to all cookies in accordance with our Cookie Policy, Privacy Policy, and Terms & Conditions.
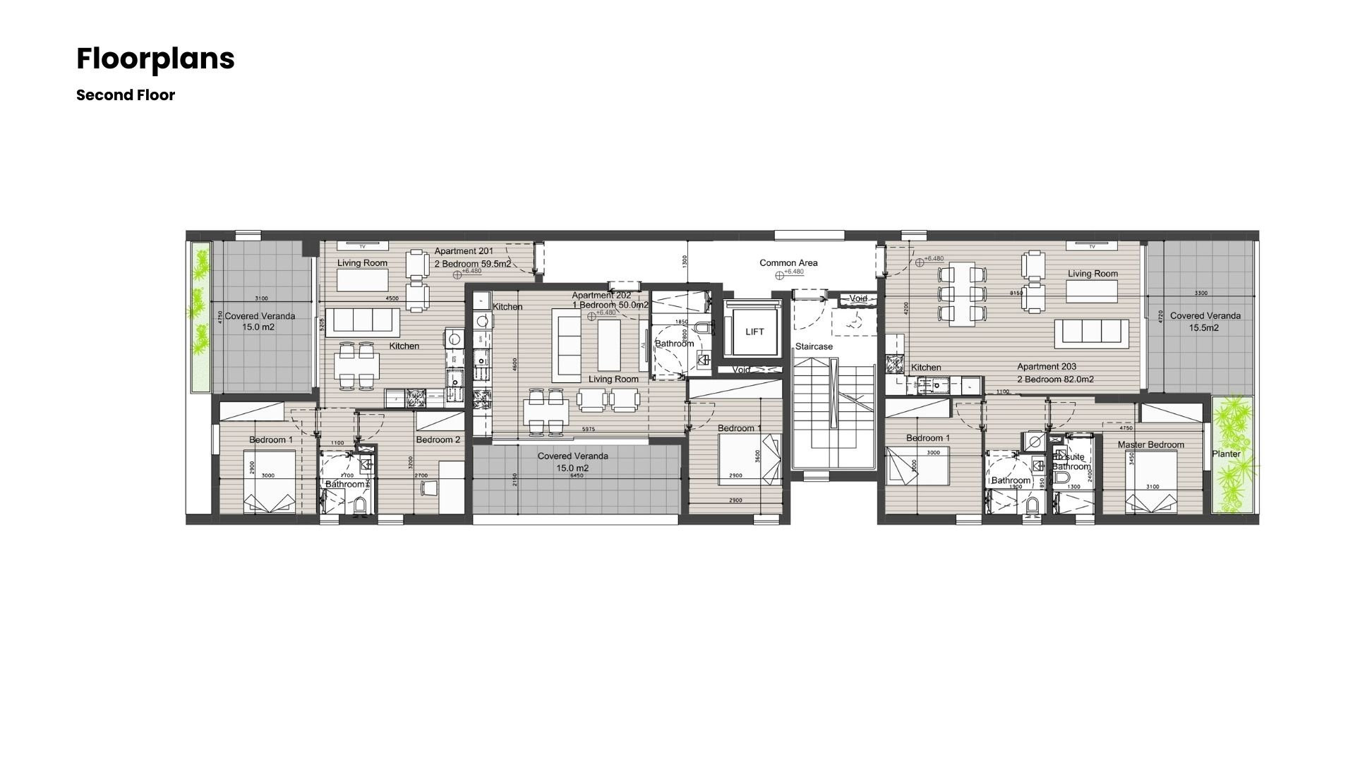
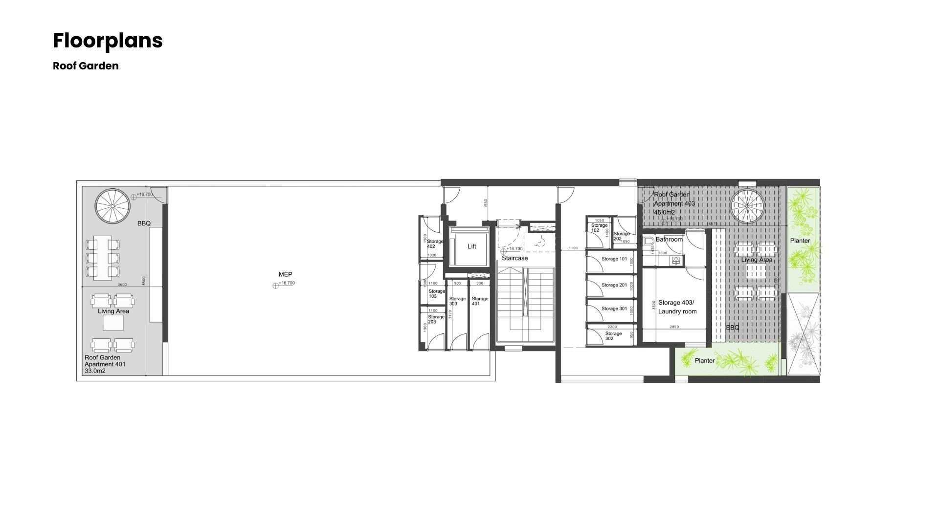
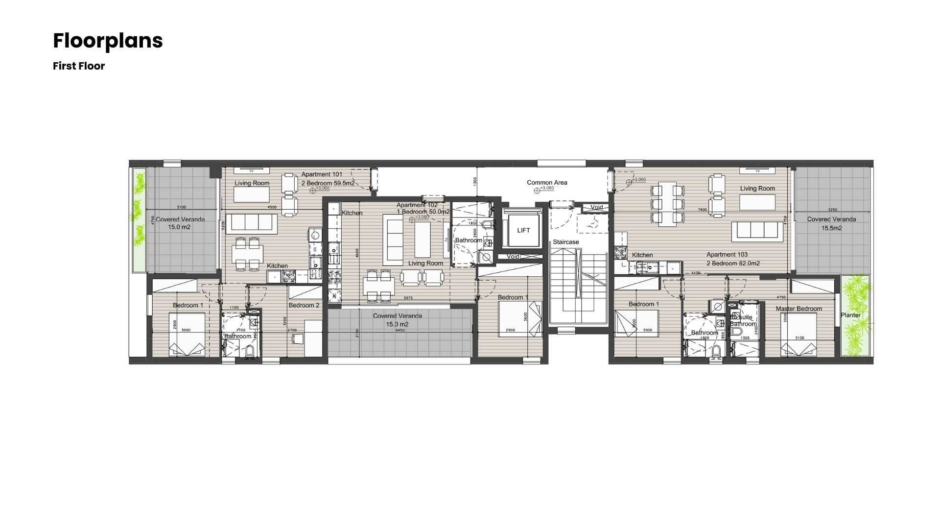
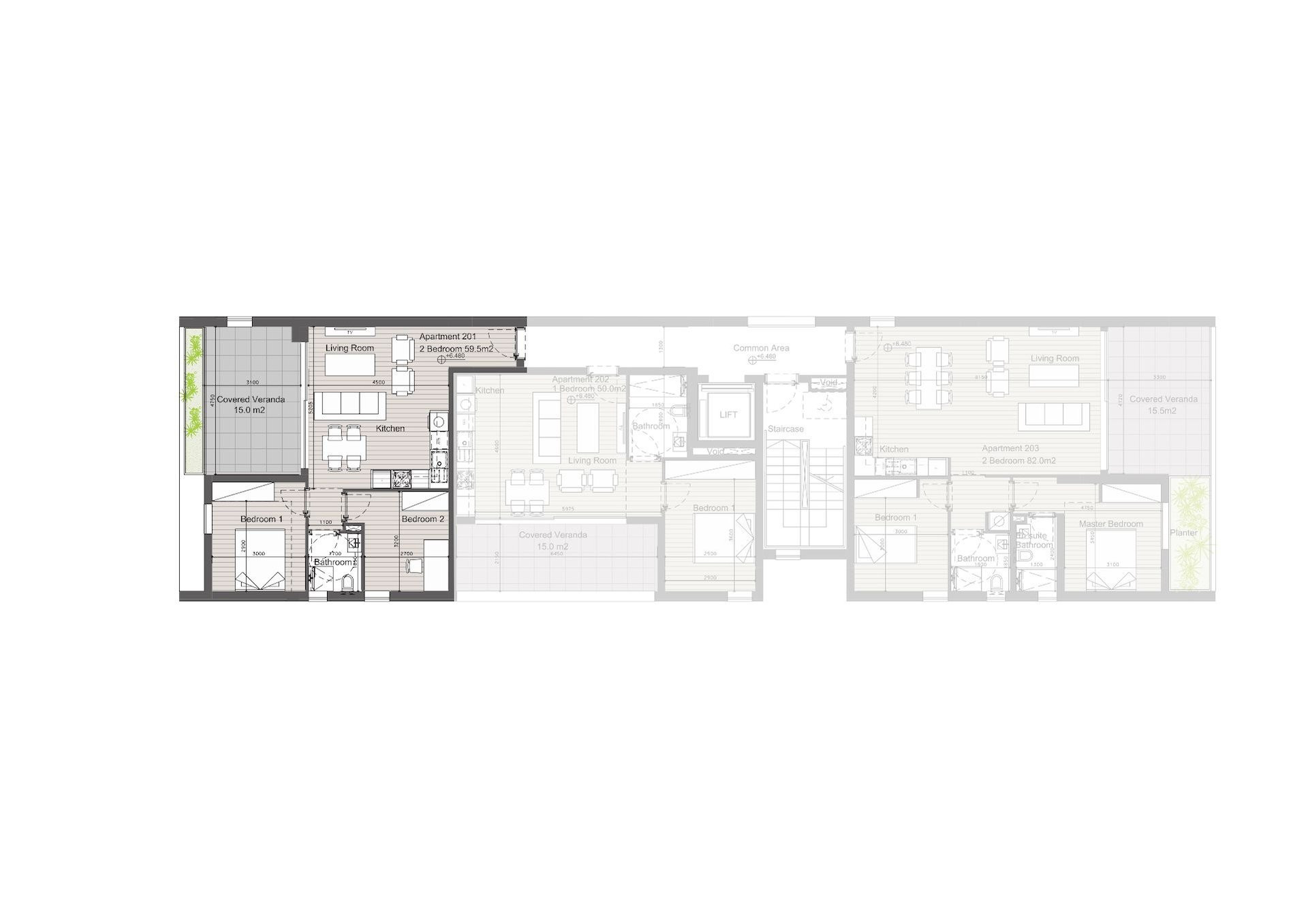
A luxury residential development in Limassol's prestigious Agia Zoni area. Featuring 12 apartments spread across four floors, including one and two-bedroom units and penthouses on the fourth floor.
Centrally located in Agia Zoni, residents enjoy easy access to shopping, dining, entertainment, public transport, and more. Each apartment boasts contemporary design, high-quality finishes, and spacious layouts maximizing natural light.
Benefit from early investment opportunities with competitive pricing in this prime Limassol real estate market.
| Property Type | Residential |
| Location | Agia Zoni |
| Status | Under construction |
| Expected Completion Date | 30 October 2026 |
| Energy Efficiency | Grade A |
| Status | Reference | Type | Floor | Floors | Parking spaces | Bedrooms | Bathrooms | Covered m2 | Covered veranda m2 | Roof garden m2 | Total Area | VAT | Estimated Monthly Rental Income | Monthly Rental Guarantee |
|---|---|---|---|---|---|---|---|---|---|---|---|---|---|---|
| 101 | Apartment | 1 | 1 | 1 | 2 | 1 | 60 | 15 | - | 75 | - | - | - | |
| 102 | Apartment | 1 | 1 | 1 | 1 | 1 | 50 | 15 | - | 67 | - | - | - | |
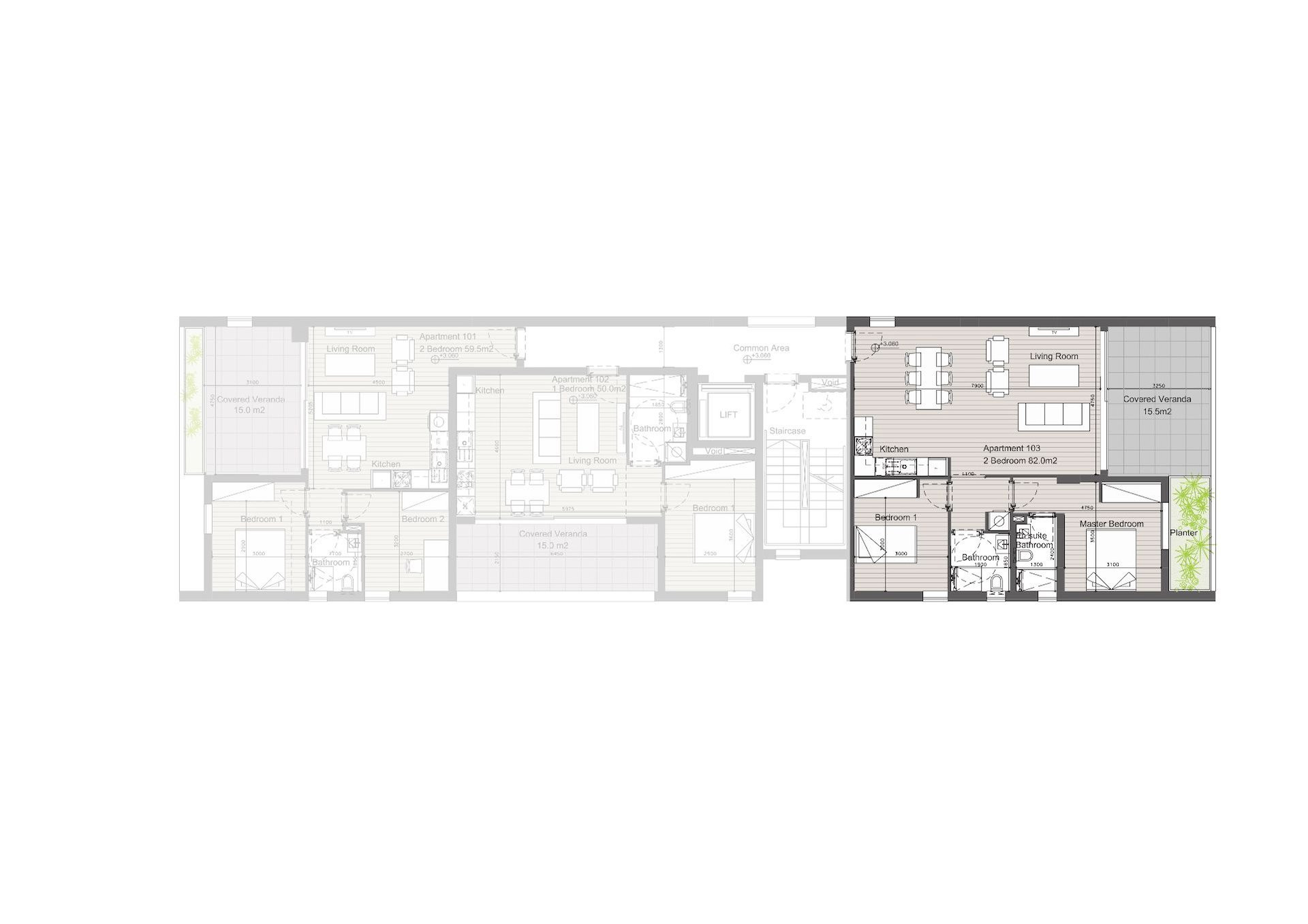
| 103 | Apartment | 1 | 1 | 1 | 2 | 2 | 75 | 22 | - | 97 | - | - | - | |
| 201 | Apartment | 2 | 1 | 1 | 2 | 1 | 60 | 15 | - | 75 | - | - | - | |
| 201 + 202 | Apartment | 2 | 1 | 1 | 3 | 2 | 110 | 30 | - | 140 | - | - | - | |
| 202 | Apartment | 2 | 1 | 1 | 1 | 1 | 50 | 15 | - | 65 | - | 1850 | 1300 | |
| 203 | Apartment | 2 | 1 | 1 | 2 | 2 | 82 | 15 | - | 97 | - | 2900 | 1600 | |
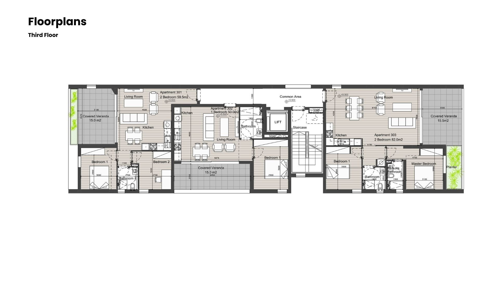
| 301 | Apartment | 3 | 1 | 1 | 2 | 1 | 60 | 15 | - | 75 | - | - | - | |
| 302 | Apartment | 3 | 1 | 1 | 1 | 1 | 50 | 15 | - | 67 | - | - | - | |
| 303 | Apartment | 3 | 1 | 1 | 2 | 2 | 82 | 15 | - | 97 | - | 2950 | 1640 | |
| 401 | Apartment | Penthouse | 1 | 1 | 2 | 1 | 65 | 11 | 33 | 109 | - | 2900 | - | |
| 402 | Apartment | Top floor | 1 | 1 | 1 | 1 | 58 | 8 | - | 67 | - | 2200 | 1450 | |
| 403 | Apartment | Penthouse | 1 | 1 | 2 | 2 | 82 | 15 | 50 | 147 | - | 3100 | 1800 | |
| Combined (401+402) | Apartment | Penthouse | 1 | 1 | 3 | 2 | 110 | 30 | 30 | 170 | - | - | - |
Are you an agent? Sign in
For inquiries, please leave us your details.
Thank you for your message!