Situated in the highly coveted area of Agios Athanasios, ALDO Residences is an exclusive boutique development comprising just six contemporary 2-bedroom apartments. Designed for those who value privacy, comfort, and modern living, this limited collection of residences offers a perfect blend of style and functionality within one of Limassol’s most desirable neighborhoods.
Set in a serene yet strategically positioned location, ALDO Residences provides effortless access to the highway and is only a short drive from Limassol’s bustling city center. Daily conveniences, including supermarkets, schools, parks, and essential services.
With its prime address, modern design, and consistently rising demand in Agios Athanasios, ALDO Residences represents a compelling opportunity for both homeowners and investors seeking long-term value, strong rental potential, and elevated everyday living.
| Тип недвижимости | Жилой |
| Расположение | Agios Athanasios |
| Статус | До начала строительства |
| Expected Completion Date | 31 мая 2028 |
| Энергоэффективность | Оценка A+ |
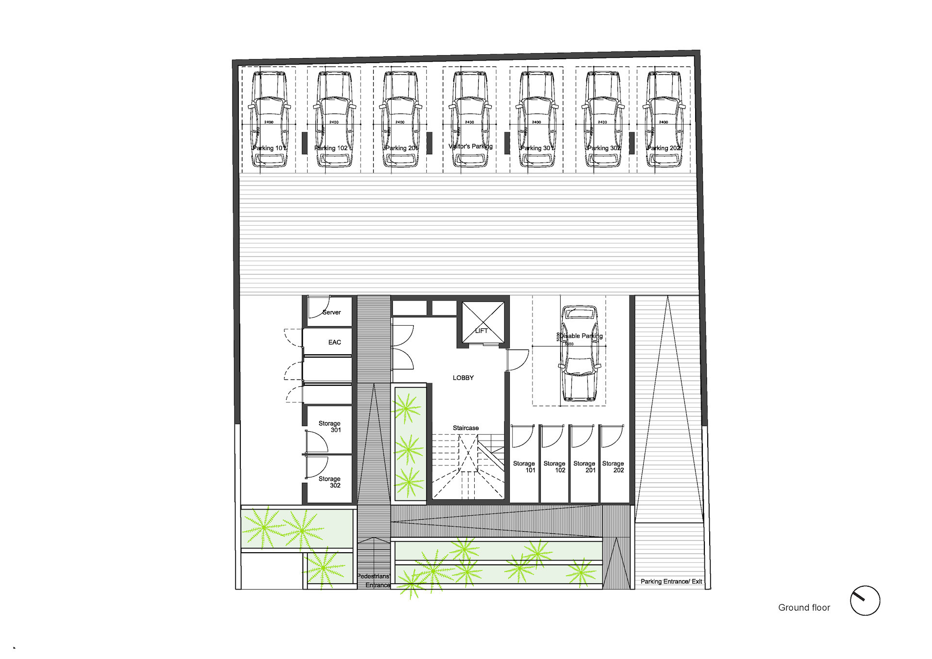
| Статус | Код | Тип | Этаж | Этажи | Парковочные места | Спальни | Ванные комнаты | Общая площадь m2 | Крытая веранда m2 | Открытая веранда m2 | Сад на крыше m2 | Общая площадь | НДС | Estimated Monthly Rental Income | Monthly Rental Guarantee |
|---|---|---|---|---|---|---|---|---|---|---|---|---|---|---|---|
| 101 | Квартира | 1 | 1 | 1 | 2 | 2 | 75 | 22 | 30 | - | 127 | - | 2000 | 1745 | |
| 102 | Квартира | 1 | 1 | 1 | 2 | 2 | 75 | 22 | 31 | - | 128 | - | 2000 | 1745 | |
| 201 | Квартира | 2 | 1 | 1 | 2 | 2 | 75 | 22 | - | - | 97 | - | 2000 | 1795 | |
| 202 | Квартира | 2 | 1 | 1 | 2 | 2 | 75 | 22 | - | - | 97 | - | 2000 | 1795 | |
| 301 | Квартира | 3 | 1 | 1 | 2 | 2 | 80 | 22 | - | 37 | 139 | - | - | - | |
| 302 | Квартира | 3 | 1 | 1 | 2 | 2 | 80 | 22 | - | 37 | 139 | - | - | - |
Are you an agent? Sign in
Для запросов, пожалуйста, оставьте нам свои данные.
Спасибо за ваше сообщение!